additional-services-bifold-detail

Additional Services

additional-services-bifold-detail

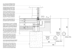
Build Over Agreements

If a proposed extension or new build property is going to be built within 3 meters or indeed over of a communal sewer, homeowners are required to have a build over agreement.

When a sewer is not being replaced a CCTV Survey is required to be submitted along with an application to Severn Trent. A CCTV survey must be done once the build is completed to ensure the sewer is running free. This build over application can be made by JAB Design and we can refer you to a drainage engineer for your CCTV survey. A fee of £75 plus VAT to submit the application as per our Terms and Conditions.

  • A communal sewer is a sewer that services more than one property and is therefore under the ownership of your sewage provider.
additional-services-hunton-road

Party Wall Agreement

If you are planning works (Extensions or New Builds) that fall under the Party Wall etc Act 1996, notice needs to be served to all parties concerned, e.g. leaseholders, freeholders. Under the Party Wall etc Act 1996 there are certain timescales that you need to adhere to as both the Building and Adjoining Owner.

For more information visit – www.mrpartywall.co.uk

additional-services-acoustics

Acoustic Reports

Many environmental factors affect how a building is designed. We may approach an acoustic engineer when designing a new build house or apartment block to ensure that sound transmittance through the building is at an acceptable level.

additional-services-sap-grades

Energy Assessments

Energy assessments are sometimes needed for home extensions if the home extension is heavily glazed, in this instance the proposed design is submitted along with a specification of materials to an energy assessor to create a SAP Calculation. To ensure calculation passes JAB Design will work with the energy assessor on the specification of the fabric of the building.

New build houses or developments require full energy assessments, here at JAB Design we instruct an energy assessor at the earliest opportunity to ensure from the outset the proposed building is compliant with building regulations.

additional-services-nrt

Arboricultural surveys

Some sites may have TPO trees (tree protection order) this means an arboriculturalist needs to provide guidance as to how the development will affect the build and how best the tree can be protected. Sometimes the planning authority will ask for these even if no TPOs are present.

additional-services-acoustics
additional-services-hunton-road
additional-services-nrt
additional-services-sap-grades

Ready to Start Your Project?

Call us today on 0121 354 1589 or email info@jabdesign.co.uk to book your free consultation.

Get in Touch